
Swansea
Mixed Use / Masterplanning, Swansea
LOYN+CO were proud to be part of the Urban Splash team for their successful bid to secure a 20 year partnership agreement with Swansea City Council across seven strategic sites in the city.
Each site is delivered in partnership with contributions from a number of different designers including Studio Egret West, Rural Office, ShedKM, AHMM, FCBS, LOYN+CO and Grant Associates.
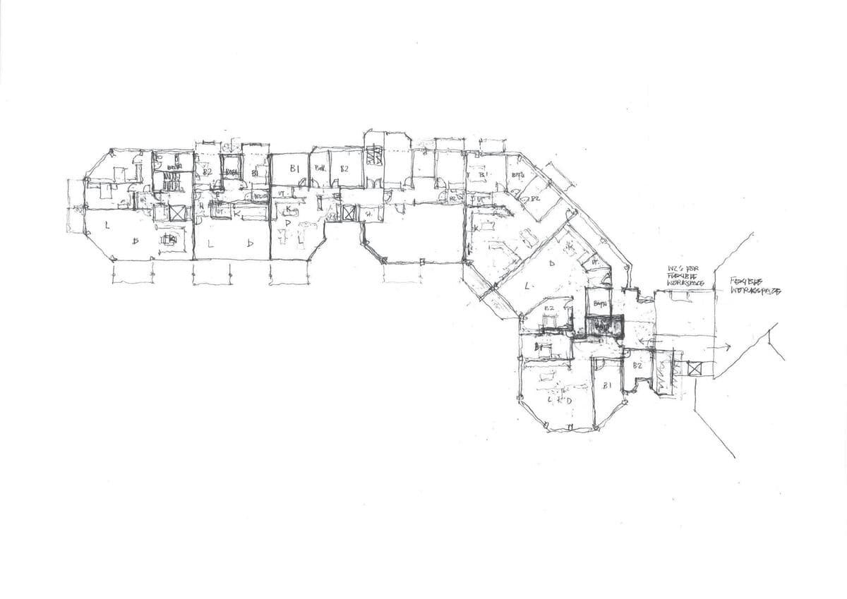
LOYN+CO explored the initial proposals for the re-use and re-imagining of the existing Civic Centre building which sits between the city and the seafront, alongside exploring options for adjacent residential development.
- Client:
- Urban Splash
- Stage:
- Stage 0